















闵虹新顾城“智慧方洲”项目位于2035上海规划城市主城区宝山新顾城。距离宝山龙湖天街500米,距离三级甲等医院华山医院(北院)和顾村公园2公里;项目以打造北上海的综合智能产业园区为愿景,构建高成长力、高科技型企业为主的产业生态体系,以智能元素串联聚焦产业、经济、服务,围绕生产、生态、生活形成一个有活力的经济增长和生态智慧园,助力宝山区向科创中心主阵地转型。
项目距地铁7号线刘行站约200米,1站可换乘地铁15号线,园区门口有公交811路、宝山62路、嘉泰线等,与外环线、市级主干道宝安公路相邻,距离上海市区约17公里,距离上海虹桥国际机场约17公里,浦东机场50公里。交通便利。
闵虹“智慧方洲”项目由上海地产闵虹新顾城科技园发展有限公司开发建设,项目用地性质为C65科研设计用地,精心打造9栋高品质智能研发办公楼宇,总建筑面积约17.5万平方米,其中地上建筑面积约12万平方米,地下建筑面积5.5万平方米,包含地下二层总计973余席停车位,项目紧紧围绕生态、健康、智慧、人文、乐活五大定位,通过打造智慧办公场景、联动硬件配置、数字化管理空间体验,满足企业的研发办公需求,联动承接区域生态网络,营造城绿融合典范。吸引智慧产业头部企业集聚,形成集研发、设计、展示、办公、测试为一体的科技型示范园区。推动北上海智慧产业高质量发展。
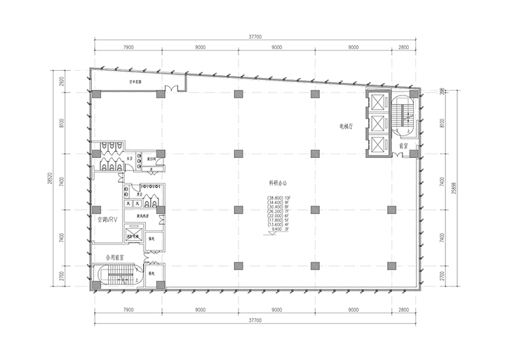
整层办公楼,共10层,首层5.2米,其余层4.2米;整层面积1000平米,售价2.2-2.8万元/平米(一房一价)
办公楼共10层,首层5.2米,其余层4.2米,建筑面积200-25000平米,租金2.2-2.8元/平米