热门搜索: 万科 杭州 保利 昆山 虹桥汇
您当前位置: 首页 > 楼盘 > 上海 > 黄浦区
香港名都

报价:

72000

元/㎡

【特价房源】限时,仅1套!

已有211人报名

面积:190-249平米

装修情况:精装交付

交房时间:现房

楼盘地址:上海市黄浦区河南南路489号

开发商:上海新达利房地产发展有限公司

电话图标 1358-5654-666

问底价?不如一个电话轻松搞定!

图标 降价通知

图标预约看房

楼盘信息

项目介绍

一、区域:香港名都位于黄浦区豫园板块,紧临豫园旅游商业区,东连外滩;南靠世博会展馆;西临淮海路商业街;北接南京路步行街。豫园板块得名于豫园,豫园是江南古典园林,始建于明代嘉靖、万历年间。豫园商圈不仅在上海之外久负盛名,真正能代表独特上海人文标志和文化名片板块之一,在上海人心中也是老上海底蕴的核心,周边商业、医疗、教育和交通等配套资源都非常完善。
 
 
二、交通:项目由8/10号两条轨交,地铁站为豫园和大世界站。自驾由延安路高架、延安路隧道、人民路隧道,距离复兴东路隧道、内环高架和南浦大桥等较近,主干道有延安东路、人民路、复兴东路和河南南路等,交通非常便利。

 
三、项目:香港名都项目整体建筑设计由凯达环球(Aedas)负责,占地面积13220平方米,总建筑面积95571平方米。项目规划建造有M Square(M2)大型购物商场、“香港名都”高级公寓及服务式写字楼等。
 
 
四、出售:大平层公寓不限购(50年产权),总高18层,4梯5户,建筑面积190-249平米,均价7.2万/平米,总价1200-1618万


数据参数

  • 所属区域
    黄浦区
    售楼电话
    1358-5654-666
    停  车  位
    1500元/月
  • 楼盘名称
    香港名都
    开盘时间
    物  业  费
    16元/平方米/月、水5.99元/吨、电1.05元/度
  • 楼盘特色
    交房时间
    现房
    物业公司
    戴德梁行
  • 楼盘类型
    酒店式公寓
    装修情况
    精装交付
    建筑面积
  • 产权年限
    容  积  率
    占地面积
  • 楼盘报价
    72000元/平方米
    绿  化  率
    开  发  商
    上海新达利房地产发展有限公司
  • 户型面积
    190-249平米
    总  栋  数
    预售证号
  • 付款方式
    总  户  数
    楼盘地址
    上海市黄浦区河南南路489号

周边配套

  • 学校
    幼儿园:蓬莱路幼儿园分园(示范园)、一级园有永安路幼儿园和松雪街幼儿园 小学:上海市实验小学(一梯队)、蓬莱路二小(一梯队)、复兴东路三小(二梯队)、董家渡路二小、上海市光明小学、黄浦区回民小学 中学:上海市光明初级中学、民办锦绣园中学
  • 购物
    商业综合体有香港名都和豫园商城。底层商业有联华超市、华润万家等大超市、豫园商圈内的多出购物中心以及数不胜数的街边店铺。另外板块紧邻南京东路和人民广场。
  • 医院
    有中西医结合医院分院等、紧邻三甲医院曙光医院西院
  • 生活
  • 娱乐
    板块内有豫园、城隍庙、古城广场等休闲场所,都是上海市内著名景点,游客较多,商业氛围浓厚。
  • 餐饮
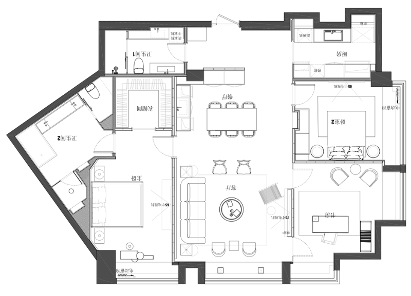
户型图
相册
地图
你可能感兴趣的楼盘

您要预约看房的楼盘是
香港名都

  • 您要预约降价通知的楼盘是
    香港名都

  • 您要预约看房的楼盘是
    香港名都

  • 您要降价通知的楼盘是
    香港名都