热门搜索: 万科 杭州 保利 昆山 虹桥汇
您当前位置: 首页 > 楼盘 > 上海 > 浦东新区
张江AI未来街区

报价:

48000

元/㎡

独栋商办 功能多样 地铁沿线

【特价房源】限时,仅1套!

已有69人报名

面积:10435平方米

装修情况:毛坯、装修

交房时间:现房

楼盘地址:浦东新区海科路777号

开发商:星月投资

电话图标 1358-5654-666

问底价?不如一个电话轻松搞定!

图标 降价通知

图标预约看房

楼盘信息

项目介绍

 一、区域:
张江AI未来街区位于张江中区核心,毗邻张江核心区,公园、张江科学会堂等大型公共活动空间,比邻张江人工智能岛,沿智慧河一线延伸。聚焦人工智能产业,与未来科技等领域的公司和机构在同一区域内,具有独特的优势。在打造AI产业的同时,吸纳各类商务配套,为张江增添城市味道和生活温度。

   


二、交通:
项目距离地铁金科路站(2号线),距地铁中科路站和学林路站(13号线),距离中环线金科出口,方便员工和客户的出行。

   

 

三、项目:
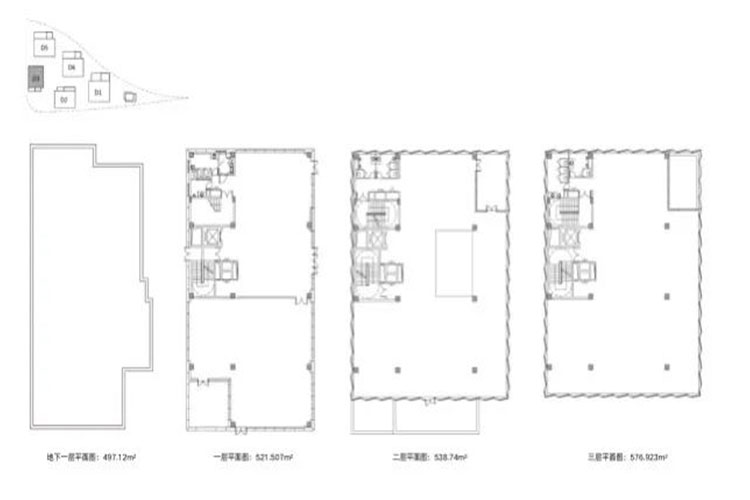
张江AI未来街由星月投资负责开发运营,总建筑面积约6万平方米,包含18幢沿河独栋商务楼及一个主题式商业街区。目前已满租,剩余D区6栋,目前在面向AI企业定向招商中。

   

四、出售:

A街区海豚湾独栋

商办地上三层,产证面积10425平,宗地面积12997平,层高4.5-5.2米,报价4.8万/平,总价5个亿(股权交易、价格可谈,目前租户酒店和体检中心


B街区独栋

面积7439.21平,单价6.8万/平,总价5.06亿


C街区独栋

面积16627.55平,单价6.8万/平,总价11.31亿


D街区独栋

面积11391.98平,单价6.8万/平,总价7.75亿



五、出租:

企业花园商业独栋,每栋地面1-3层地下1层,每层层高4.5米,地下室层高5.8米预留采光井通风,天然气接入。独栋建筑面积1500-2500平米,租金7.8元/天/平



 

数据参数

  • 所属区域
    浦东新区
    售楼电话
    1358-5654-666
    停  车  位
    共132个
  • 楼盘名称
    张江AI未来街区
    开盘时间
    物  业  费
    19.6元/㎡/月
  • 楼盘特色
    独栋商办  功能多样  地铁沿线  
    交房时间
    现房
    物业公司
    上海星跃物业管理有限公司
  • 楼盘类型
    办公楼
    装修情况
    毛坯、装修
    建筑面积
    约6万平米
  • 产权年限
    容  积  率
    0.8
    占地面积
  • 楼盘报价
    48000元/平方米
    绿  化  率
    35%
    开  发  商
    星月投资
  • 户型面积
    10435平方米
    总  栋  数
    18栋
    预售证号
  • 付款方式
    总  户  数
    楼盘地址
    浦东新区海科路777号

周边配套

  • 学校
    筑桥实验小学、华东师范大学附属第二中学、复旦大学张江校区等
  • 购物
    绿地缤纷广场、2049翡翠公园、长泰广场、传奇广场等
  • 医院
    曙光医院、浦东新区周浦医院等
  • 生活
    自身配套:星巴克、台乡缘、荣兴酒家、棉里咖啡、假日智选酒店等
  • 娱乐
  • 餐饮
户型图
地图
你可能感兴趣的楼盘

您要预约看房的楼盘是
张江AI未来街区

  • 您要预约降价通知的楼盘是
    张江AI未来街区

  • 您要预约看房的楼盘是
    张江AI未来街区

  • 您要降价通知的楼盘是
    张江AI未来街区